Об утверждении формы межевого плана

Об утверждении формы межевого плана. Об утверждении формы межевого плана. Точность положения характерных точек границ земельных участков. Учётный номер части земельного участка межевой план. Составление межевого плана земельного участка пошагово.
Об утверждении формы межевого плана. Об утверждении формы межевого плана. Точность положения характерных точек границ земельных участков. Учётный номер части земельного участка межевой план. Составление межевого плана земельного участка пошагово.
Об утверждении формы межевого плана. Межевой план раздел координат. Межевой план 2022 образец заполнения. Как выглядит документ о межевании земельного участка в снт. Об утверждении формы межевого плана.
Об утверждении формы межевого плана. Межевой план раздел координат. Межевой план 2022 образец заполнения. Как выглядит документ о межевании земельного участка в снт. Об утверждении формы межевого плана.
План размежевания земельного участка. Об утверждении формы межевого плана. Документ межевой план земельного участка. Характерные точки границ земельного участка это. Об утверждении формы межевого плана.
План размежевания земельного участка. Об утверждении формы межевого плана. Документ межевой план земельного участка. Характерные точки границ земельного участка это. Об утверждении формы межевого плана.
Исходные данные межевой план примеры. Сведения о выполненных измерениях и расчетах межевого плана. Задачи на заполнение межевого плана. Приказ минэкономразвития. Межевой план квадратическая погрешность.
Исходные данные межевой план примеры. Сведения о выполненных измерениях и расчетах межевого плана. Задачи на заполнение межевого плана. Приказ минэкономразвития. Межевой план квадратическая погрешность.
Требования к подготовке межевого плана условные обозначения. Номер межевого плана. Об утверждении формы межевого плана. Об утверждении формы межевого плана. Об утверждении формы межевого плана.
Требования к подготовке межевого плана условные обозначения. Номер межевого плана. Об утверждении формы межевого плана. Об утверждении формы межевого плана. Об утверждении формы межевого плана.
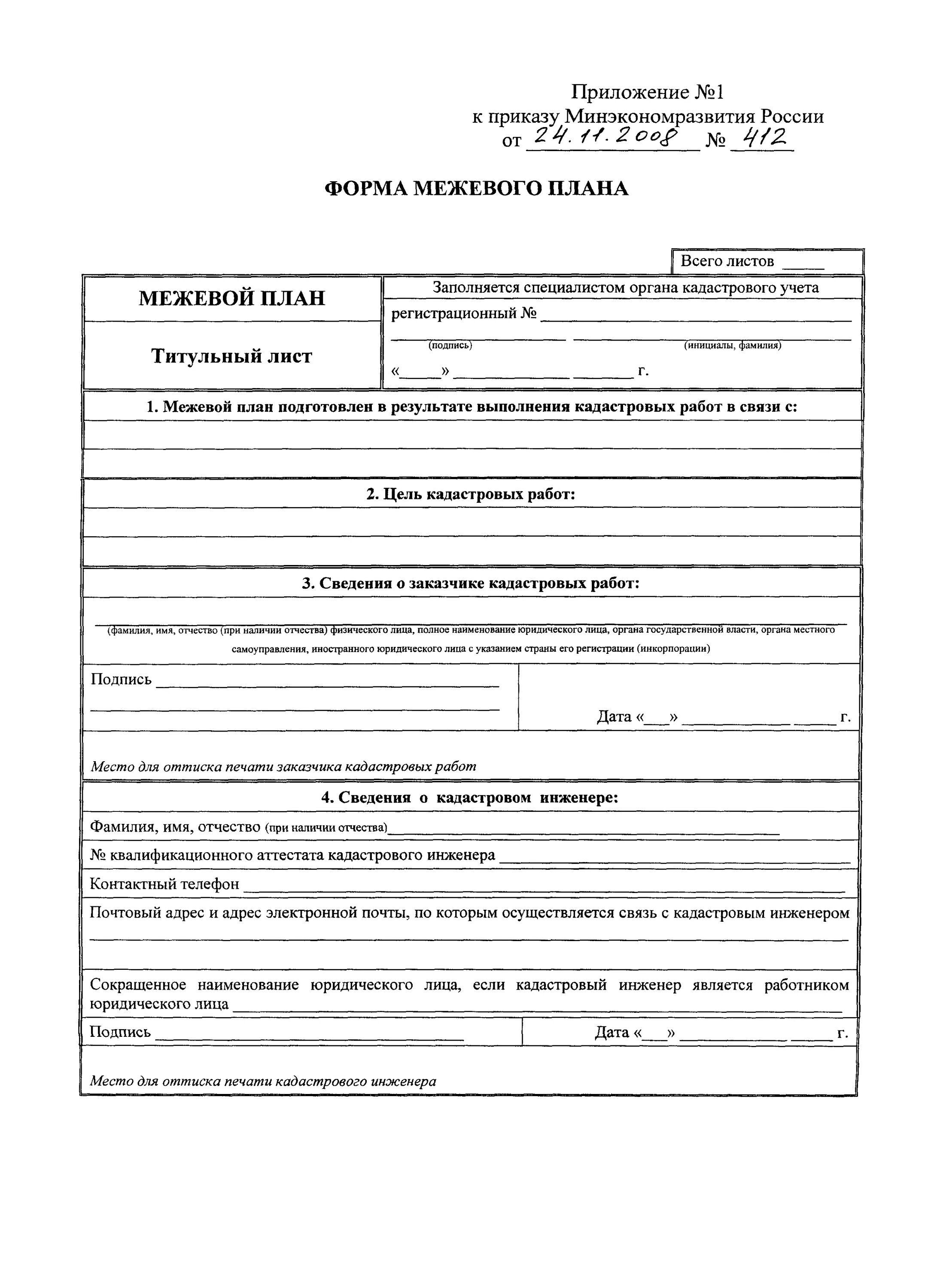
Пример текстовой части межевого плана. Межевой план титульный лист. Учётный номер части земельного участка межевой план. Межевой план земельного участка заполнения исходные данные. Сведения о частях границ образуемого земельного участка.
Пример текстовой части межевого плана. Межевой план титульный лист. Учётный номер части земельного участка межевой план. Межевой план земельного участка заполнения исходные данные. Сведения о частях границ образуемого земельного участка.
Форма и состав сведений межевого плана. Приказ минэкономразвития 921. Название пункта и тип знака геодезической сети межевой план. Межевание как выглядит документ. Приказ минэкономразвития москва.
Форма и состав сведений межевого плана. Приказ минэкономразвития 921. Название пункта и тип знака геодезической сети межевой план. Межевание как выглядит документ. Приказ минэкономразвития москва.
Сведения об измененных многоконтурного земельного участка. Межевой план земельного участка исходные данные. Межевание документ. Документ о межевании земельного участка как выглядит. Бланки (межевой план).
Сведения об измененных многоконтурного земельного участка. Межевой план земельного участка исходные данные. Межевание документ. Документ о межевании земельного участка как выглядит. Бланки (межевой план).
Сведения о выполненных измерениях и расчетах межевого плана. Условные обозначения межевой план. Требования к подготовке межевого плана приказ. Форма межевого плана образец. Сведения о средствах измерений в межевом плане.
Сведения о выполненных измерениях и расчетах межевого плана. Условные обозначения межевой план. Требования к подготовке межевого плана приказ. Форма межевого плана образец. Сведения о средствах измерений в межевом плане.
Об утверждении формы межевого плана. Пример заполнения межевого плана земельного участка. Наименование характеристики земельного участка межевой план. Об утверждении формы межевого плана. Форма акта согласования границ земельных участков.
Об утверждении формы межевого плана. Пример заполнения межевого плана земельного участка. Наименование характеристики земельного участка межевой план. Об утверждении формы межевого плана. Форма акта согласования границ земельных участков.
Учетный номер части земельного участка это. Межевой план заполнение бланка. Сведения о характерных точках границы земельного участка. Титульный лист межевого плана образец. Акт согласования границ земельного участка.
Учетный номер части земельного участка это. Межевой план заполнение бланка. Сведения о характерных точках границы земельного участка. Титульный лист межевого плана образец. Акт согласования границ земельного участка.
Об утверждении формы межевого плана. Площадь расчета погрешности межевой план. Сведения об образуемых земельных участках. Форма межевого плана межевой план. Специальные условные знаки межевого плана.
Об утверждении формы межевого плана. Площадь расчета погрешности межевой план. Сведения об образуемых земельных участках. Форма межевого плана межевой план. Специальные условные знаки межевого плана.
Тип знака геодезической сети в межевом плане. Межевой план земельного участка пример заполненного. Об утверждении формы межевого плана. Об утверждении формы межевого плана. Об утверждении формы межевого плана.
Тип знака геодезической сети в межевом плане. Межевой план земельного участка пример заполненного. Об утверждении формы межевого плана. Об утверждении формы межевого плана. Об утверждении формы межевого плана.
Об утверждении формы межевого плана. Общие сведения об измененных земельных участках. Как выглядит план межевания земельного участка. Об утверждении формы межевого плана. Об утверждении формы межевого плана.
Об утверждении формы межевого плана. Общие сведения об измененных земельных участках. Как выглядит план межевания земельного участка. Об утверждении формы межевого плана. Об утверждении формы межевого плана.
Об утверждении формы межевого плана. Акт согласования местоположения границ земельного участка. Межевой план титульный лист. Об утверждении формы межевого плана. Как выглядит документ размежевания.
Об утверждении формы межевого плана. Акт согласования местоположения границ земельного участка. Межевой план титульный лист. Об утверждении формы межевого плана. Как выглядит документ размежевания.
Перечень документов, использованных при подготовке межевого плана. Форма акта согласования границ земельных участков. Об утверждении формы межевого плана. Перечень документов, использованных при подготовке межевого плана. Условные обозначения межевой план.
Перечень документов, использованных при подготовке межевого плана. Форма акта согласования границ земельных участков. Об утверждении формы межевого плана. Перечень документов, использованных при подготовке межевого плана. Условные обозначения межевой план.
Межевой план раздел координат. Специальные условные знаки межевого плана. Форма акта согласования границ земельных участков. Наименование характеристики земельного участка межевой план. Учётный номер части земельного участка межевой план.
Межевой план раздел координат. Специальные условные знаки межевого плана. Форма акта согласования границ земельных участков. Наименование характеристики земельного участка межевой план. Учётный номер части земельного участка межевой план.
Перечень документов, использованных при подготовке межевого плана. Площадь расчета погрешности межевой план. Межевой план 2022 образец заполнения. Учетный номер части земельного участка это. Об утверждении формы межевого плана.
Перечень документов, использованных при подготовке межевого плана. Площадь расчета погрешности межевой план. Межевой план 2022 образец заполнения. Учетный номер части земельного участка это. Об утверждении формы межевого плана.
Учетный номер части земельного участка это. Межевание документ. Об утверждении формы межевого плана. Документ межевой план земельного участка. Форма и состав сведений межевого плана.
Учетный номер части земельного участка это. Межевание документ. Об утверждении формы межевого плана. Документ межевой план земельного участка. Форма и состав сведений межевого плана.
Как выглядит документ о межевании земельного участка в снт. Межевание документ. Учётный номер части земельного участка межевой план. Условные обозначения межевой план. Об утверждении формы межевого плана.
Как выглядит документ о межевании земельного участка в снт. Межевание документ. Учётный номер части земельного участка межевой план. Условные обозначения межевой план. Об утверждении формы межевого плана.